1. トップページ
  2. 府中市日新町5丁目 新築一戸建て 5290万円 G号棟

府中市日新町5丁目 新築一戸建て 5290万円 G号棟

価格
5,290万円
物件種別
新築一戸建て
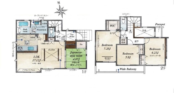
間取り
4LDK
所在地
府中市 日新町5丁目
交通
  • 南武線「西府」駅 徒歩 17 分
  • 南武線「谷保」駅 バス停「日新町二丁目」まで 徒歩 4 分 バス利用 8分
土地面積
118.03㎡
建物面積
92.32㎡
  • 前回情報更新日 2026.01.08
  • 次回情報更新予定日 2026.01.22
資料請求 現地見学 電話でお問い合わせ
0120-613-180
外観:現地外観写真(建築中)
外観:現地外観写真(建築中)
間取図
間取図
外観:現地外観写真(建築中)
外観:現地外観写真(建築中)
外観:前面道路含む現地外観写真(建築中)
外観:前面道路含む現地外観写真(建築中)
周辺環境:府中市立日新小学校
周辺環境:府中市立日新小学校
周辺環境:府中市立府中第十中学校
周辺環境:府中市立府中第十中学校
周辺環境:西保育所
周辺環境:西保育所
周辺環境:府中恵仁会病院
周辺環境:府中恵仁会病院
周辺環境:西府駅
周辺環境:西府駅

この物件のココがオススメ!

陽当りの良い角地です。家族が集うLDKは開放的で明るい間取り。プライベートも充実の4LDKの住まい。

こだわりポイント

  • 鉄塔近接
  • 耐震に配慮された建物
  • 省エネに配慮された建物
  • 浴室換気乾燥暖房機
  • 太陽光発電システム
  • 運転ラクラク生活
  • 区画整理分譲地内に住む
  • LDKは1階に
  • 2階建て住宅限定
  • リビングイン階段
  • LDK18帖以上
  • 対面キッチン
  • 浴室1坪以上
  • 小学校10分以内
  • 有料道路インター2キロ以内
  • コンビニ10分以内
  • 保育園10分以内
  • 幼稚園10分以内
  • 公園10分以内
  • 都市ガス
  • フラット35利用可
  • カースペース2台
  • 10棟以上の分譲地
  • 隣家との間隔たっぷり
  • 角地限定
  • 道路広々(5m以上)
  • 日当たり良好
  • 南道路限定
  • 道路と段差無し
  • 低層住居専用地域

お気軽にどうぞ!

資料請求 現地見学 電話でお問い合わせ
0120-613-180

地図

申し訳ありません
こちらは会員限定機能です

会員登録で利用できる6つの便利機能

詳しく見る

間取り

お気軽にどうぞ!

資料請求 現地見学 電話でお問い合わせ
0120-613-180

ローンシミュレーション

頭金0万円・金利0.495%の場合

ボーナス時(年2回)お支払額

0

この物件の月々のお支払額

148,174

年収に対する返済比率

59

  • ※会員登録し、詳細情報を記入されますと、全ての物件で自動的に金額が表示され、大変便利です。
  • ※まだ会員登録をされていない方は、下記チェック欄をご記入ください。
  • ※上記計算は物件価格5,290万円+諸経費 8%込みの金額による結果となります。
  • ※返済金額はあくまでも目安です。

お客様の条件からシミュレーションするには?

会員登録
マイページから登録

ローンシミュレーションを入力

金利

直接入力する

ボーナス払い(年2回)

返済年数

頭金

直接入力する

 万円(半角数字)

年収

 万円(半角数字)

周辺環境

約450m

小学校

周辺環境:府中市立日新小学校

小学校

約450m

約1,300m

中学校

周辺環境:府中市立府中第十中学校

中学校

約1,300m

約2,070m

幼稚園・保育園

周辺環境:西保育所

幼稚園・保育園

約2,070m

約2,240m

病院

周辺環境:府中恵仁会病院

病院

約2,240m

約1,300m

周辺環境:西府駅

約1,300m

物件概要

価格 5,290万円
物件種別 新築一戸建て
間取り 4LDK
所在地 府中市 日新町5丁目
交通
  • 南武線「西府」駅 徒歩 17 分
  • 南武線「谷保」駅 バス停「日新町二丁目」まで 徒歩 4 分 バス利用 8分
土地面積 118.03㎡
建物面積 92.32㎡
学区 府中市立日新小学校、府中市立府中第十中学校
用途地域 第一種低層住居専用
建ぺい率 40%
容積率 80%
地目 宅地
駐車場 有り カースペース
接道 南5m、南東5m
権利 所有権
私道面積 無し
セットバック 無し
建物構造 木造
建物階数 2階
築年月 2026年01月
入居日 2026年02月
都市計画 市街化区域
取引態様 仲介
物件番号 T289033
設備 公営水道、公共下水、設計住宅性能評価付、外壁サイディング、閑静な住宅地、角地、地盤調査済、南側道路面す、2沿線以上利用可、システムキッチン、カウンタキッチン、追い焚き、浴室乾燥機、トイレ2ヶ所、浴室1坪以上、浴室に窓、南面バルコニー、2階建、LDK18畳以上、採光3面、全室2面採光、リビング階段、床下収納、全居室収納、フラット35Sに対応、モニタ付きインターフォン、複層ガラス、通風良好、陽当り良好
建築確認番号 第HPA-25-09338-1号
特記事項 22条区域・西部地区区画整理事業区域・P2台可(車種による)/不整形地:有/景観法:有/航空法:有/宅地造成工事規制区域:有/高度地区:有/日影制限:有/高さ限度:有。 /
備考 陽当りの良い角地です。家族が集うLDKは開放的で明るい間取り。プライベートも充実の4LDKの住まい。

お気軽にどうぞ!

資料請求 現地見学 電話でお問い合わせ
0120-613-180

このエリアでお探しの方へ

府中市日新町3丁目 新築一戸建て 4990万円 E号棟

南武線「西府」駅 徒歩 12 分

京王線「中河原」駅 徒歩 19 分

府中市 日新町3丁目

4,990万円

4LDK

東久留米市南沢4丁目 新築一戸建て 4990万円 O号棟

西武池袋線「ひばりヶ丘」駅 バス停「南沢四丁目」まで 徒歩 5 分 バス利用 8分

西武池袋線「東久留米」駅 徒歩 25 分

東久留米市 南沢4丁目

4,990万円

4LDK

三鷹市大沢5丁目 新築一戸建て 4990万円 4号棟

京王線「西調布」駅 徒歩 28 分

京王線「調布」駅 バス停「大沢グラウンド入口」まで 徒歩 5 分 バス利用 11分

三鷹市 大沢5丁目

4,990万円

3SLDK

東久留米市南沢4丁目 新築一戸建て 4990万円 Q号棟

西武池袋線「ひばりヶ丘」駅 バス停「南沢四丁目」まで 徒歩 5 分 バス利用 8分

西武池袋線「東久留米」駅 徒歩 25 分

東久留米市 南沢4丁目

4,990万円

3SLDK

東久留米市南沢4丁目 新築一戸建て 4990万円 P号棟

西武池袋線「ひばりヶ丘」駅 バス停「南沢四丁目」まで 徒歩 5 分 バス利用 8分

西武池袋線「東久留米」駅 徒歩 25 分

東久留米市 南沢4丁目

4,990万円

4LDK

東久留米市南沢4丁目 新築一戸建て 4990万円 E号棟

西武池袋線「ひばりヶ丘」駅 バス停「南沢四丁目」まで 徒歩 5 分 バス利用 8分

西武池袋線「東久留米」駅 徒歩 25 分

東久留米市 南沢4丁目

4,990万円

4LDK

調布市深大寺南町5丁目 新築一戸建て 4990万円 4号棟

京王線「つつじヶ丘」駅 バス停「晃華学園」まで 徒歩 4 分 バス利用 7分

京王線「柴崎」駅 徒歩 25 分

調布市 深大寺南町5丁目

4,990万円

4LDK

小平市小川町1丁目 新築一戸建て 4990万円 A号棟

西武国分寺線「鷹の台」駅 徒歩 19 分

武蔵野線「新小平」駅 徒歩 31 分

小平市 小川町1丁目

4,990万円

4LDK

東久留米市南沢4丁目 新築一戸建て 4990万円 C号棟

西武池袋線「ひばりヶ丘」駅 バス停「南沢四丁目」まで 徒歩 5 分 バス利用 8分

西武池袋線「東久留米」駅 徒歩 25 分

東久留米市 南沢4丁目

4,990万円

3SLDK

東久留米市南沢4丁目 新築一戸建て 4990万円 B号棟

西武池袋線「ひばりヶ丘」駅 バス停「南沢四丁目」まで 徒歩 5 分 バス利用 8分

西武池袋線「東久留米」駅 徒歩 25 分

東久留米市 南沢4丁目

4,990万円

4LDK

府中市四谷4丁目 新築一戸建て 5080万円 11号棟

京王線「中河原」駅 徒歩 20 分

南武線「西府」駅 徒歩 22 分

府中市 四谷4丁目

5,080万円

4LDK

東村山市萩山町1丁目 新築一戸建て 5080万円 1号棟

西武拝島線「萩山」駅 徒歩 5 分

西武新宿線「小平」駅 徒歩 10 分

東村山市 萩山町1丁目

5,080万円

3LDK

お気軽にどうぞ!

資料請求 現地見学 電話でお問い合わせ
0120-613-180
来店予約