1. トップページ
  2. 西東京市南町3丁目 新築一戸建て 6480万円 1号棟

西東京市南町3丁目 新築一戸建て 6480万円 1号棟

価格
6,480万円
物件種別
新築一戸建て
間取り
4LDK
所在地
西東京市 南町3丁目
交通
  • 西武新宿線「田無」駅 徒歩 10 分
  • 中央線「武蔵境」駅 バス停「南町三丁目」まで 徒歩 3 分 バス利用 13分
土地面積
108.68㎡
建物面積
85.86㎡
  • 前回情報更新日 2025.10.23
  • 次回情報更新予定日 2025.11.06
資料請求 現地見学 電話でお問い合わせ
0120-613-180
外観:現地外観写真(建築中)
外観:現地外観写真(建築中)
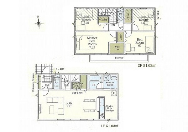
間取図
間取図
外観:現地外観写真(建築中)
外観:現地外観写真(建築中)
外観:前面道路含む現地外観写真(建築中)
外観:前面道路含む現地外観写真(建築中)
周辺環境:西東京市立柳沢小学校
周辺環境:西東京市立柳沢小学校
周辺環境:西東京市立田無第四中学校
周辺環境:西東京市立田無第四中学校
周辺環境:西東京市立向台保育園
周辺環境:西東京市立向台保育園
周辺環境:佐々総合病院
周辺環境:佐々総合病院
周辺環境:田無駅
周辺環境:田無駅

この物件のココがオススメ!

水廻りが集中した家事動線良好な間取りです。リビング階段仕様で家族が顔を合わせやすい造り。P2台可。

こだわりポイント

  • 耐震に配慮された建物
  • 浴室換気乾燥暖房機
  • 太陽光発電システム
  • 大型商業施設のある街に住む
  • 急行電車でスピード通勤
  • 始発で座ってゆったり通勤
  • LDKは1階に
  • 2階建て住宅限定
  • リビングイン階段
  • LDK18帖以上
  • 対面キッチン
  • 浴室1坪以上
  • 小学校10分以内
  • 大型商業施設15分以内
  • スーパー10分以内
  • コンビニ10分以内
  • 保育園10分以内
  • 幼稚園10分以内
  • 公園10分以内
  • 都市ガス
  • フラット35利用可
  • カースペース2台
  • 隣家との間隔たっぷり
  • 角地限定
  • 日当たり良好
  • 道路と段差無し
  • 低層住居専用地域

お気軽にどうぞ!

資料請求 現地見学 電話でお問い合わせ
0120-613-180

地図

申し訳ありません
こちらは会員限定機能です

会員登録で利用できる6つの便利機能

詳しく見る

間取り

お気軽にどうぞ!

資料請求 現地見学 電話でお問い合わせ
0120-613-180

ローンシミュレーション

頭金0万円・金利0.495%の場合

ボーナス時(年2回)お支払額

0

この物件の月々のお支払額

181,503

年収に対する返済比率

73

  • ※会員登録し、詳細情報を記入されますと、全ての物件で自動的に金額が表示され、大変便利です。
  • ※まだ会員登録をされていない方は、下記チェック欄をご記入ください。
  • ※上記計算は物件価格6,480万円+諸経費 8%込みの金額による結果となります。
  • ※返済金額はあくまでも目安です。

お客様の条件からシミュレーションするには?

会員登録
マイページから登録

ローンシミュレーションを入力

金利

直接入力する

ボーナス払い(年2回)

返済年数

頭金

直接入力する

 万円(半角数字)

年収

 万円(半角数字)

周辺環境

約450m

小学校

周辺環境:西東京市立柳沢小学校

小学校

約450m

約700m

中学校

周辺環境:西東京市立田無第四中学校

中学校

約700m

約480m

幼稚園・保育園

周辺環境:西東京市立向台保育園

幼稚園・保育園

約480m

約980m

病院

周辺環境:佐々総合病院

病院

約980m

約800m

周辺環境:田無駅

約800m

物件概要

価格 6,480万円
物件種別 新築一戸建て
間取り 4LDK
所在地 西東京市 南町3丁目
交通
  • 西武新宿線「田無」駅 徒歩 10 分
  • 中央線「武蔵境」駅 バス停「南町三丁目」まで 徒歩 3 分 バス利用 13分
土地面積 108.68㎡
建物面積 85.86㎡
学区 西東京市立柳沢小学校、西東京市立田無第四中学校
用途地域 第一種低層住居専用
建ぺい率 50%
容積率 80%
地目 宅地
駐車場 有り カースペース
接道 北西4m、南西6m
権利 所有権
私道面積 無し
セットバック 無し
建物構造 木造
建物階数 2階
築年月 2025年10月
入居日 2025年11月
都市計画 市街化区域
取引態様 仲介
物件番号 T286132
設備 公営水道、公共下水、閑静な住宅地、角地、地盤調査済、前道6m以上、2沿線以上利用可、システムキッチン、カウンタキッチン、追い焚き、浴室乾燥機、トイレ2ヶ所、浴室1坪以上、浴室に窓、南面バルコニー、2階建、LDK18畳以上、全室2面採光、リビング階段、床下収納、フラット35Sに対応、モニタ付きインターフォン、複層ガラス、通風良好、陽当り良好
建築確認番号 第24UDI1W建05863号
特記事項 法22条区域/不整形地:有/隅切り:有/高度地区:有/日影制限:有/高さ限度:有。 /
備考 水廻りが集中した家事動線良好な間取りです。リビング階段仕様で家族が顔を合わせやすい造り。P2台可。

お気軽にどうぞ!

資料請求 現地見学 電話でお問い合わせ
0120-613-180

このエリアでお探しの方へ

調布市入間町2丁目 新築一戸建て 6180万円 1号棟

京王線「つつじヶ丘」駅 徒歩 19 分

京王線「仙川」駅 徒歩 20 分

調布市 入間町2丁目

6,180万円

3LDK

小金井市前原町1丁目 新築一戸建て 6180万円 1号棟

中央線「武蔵小金井」駅 徒歩 19 分

西武多摩川線「新小金井」駅 徒歩 25 分

小金井市 前原町1丁目

6,180万円

3LDK

小金井市貫井南町1丁目 新築一戸建て 6199万円 2号棟

中央線「武蔵小金井」駅 徒歩 23 分

京王線「府中」駅 バス停「東京自治会館」まで 徒歩 3 分 バス利用 15分

小金井市 貫井南町1丁目

6,199万円

4LDK

府中市浅間町4丁目 新築一戸建て 6199万円 1号棟

京王線「東府中」駅 徒歩 22 分

中央線「武蔵小金井」駅 バス停「浅間山公園」まで 徒歩 3 分 バス利用 19分

府中市 浅間町4丁目

6,199万円

3LDK

小平市上水新町3丁目 新築一戸建て 6199万円 1号棟

西武国分寺線「鷹の台」駅 徒歩 8 分

中央線「国立」駅 バス停「北野二丁目」まで 徒歩 5 分 バス利用 18分

小平市 上水新町3丁目

6,199万円

4LDK

調布市富士見町1丁目 新築一戸建て 6280万円

京王線「西調布」駅 徒歩 8 分

京王線「調布」駅 徒歩 20 分

調布市 富士見町1丁目

6,280万円

3LDK

小金井市貫井南町4丁目 新築一戸建て 6280万円 1号棟

中央線「国分寺」駅 徒歩 19 分

中央線「武蔵小金井」駅 徒歩 24 分

小金井市 貫井南町4丁目

6,280万円

3LDK

府中市分梅町2丁目 新築一戸建て 6499万円 1号棟

京王線「分倍河原」駅 徒歩 11 分

京王線「中河原」駅 徒歩 12 分

府中市 分梅町2丁目

6,299万円

3SLDK

国分寺市高木町3丁目 新築一戸建て 6299万円 1号棟

中央線「国立」駅 徒歩 24 分

中央線「立川」駅 バス停「西町四丁目」まで 徒歩 4 分 バス利用 19分

国分寺市 高木町3丁目

6,299万円

4LDK

国立市西1丁目 新築一戸建て 6380万円 D号棟

南武線「西国立」駅 徒歩 14 分

中央線「国立」駅 徒歩 18 分

国立市 西1丁目

6,380万円

2SLDK

三鷹市大沢1丁目 新築一戸建て 6390万円 1号棟

京王線「調布」駅 バス停「深大寺北町」まで 徒歩 9 分 バス利用 12分

中央線「三鷹」駅 バス停「深大寺北町」まで 徒歩 9 分 バス利用 27分

三鷹市 大沢1丁目

6,390万円

4LDK

調布市深大寺東町6丁目 新築一戸建て 6399万円 2号棟

京王線「調布」駅 バス停「北ノ台小学校」まで 徒歩 5 分 バス利用 22分

京王線「つつじヶ丘」駅 バス停「西原」まで 徒歩 11 分 バス利用 13分

調布市 深大寺東町6丁目

6,399万円

2LDK+2S

お気軽にどうぞ!

資料請求 現地見学 電話でお問い合わせ
0120-613-180
来店予約