1. トップページ
  2. 三鷹市牟礼6丁目 新築一戸建て 6680万円 1号棟

三鷹市牟礼6丁目 新築一戸建て 6680万円 1号棟

価格
6,680万円
物件種別
新築一戸建て
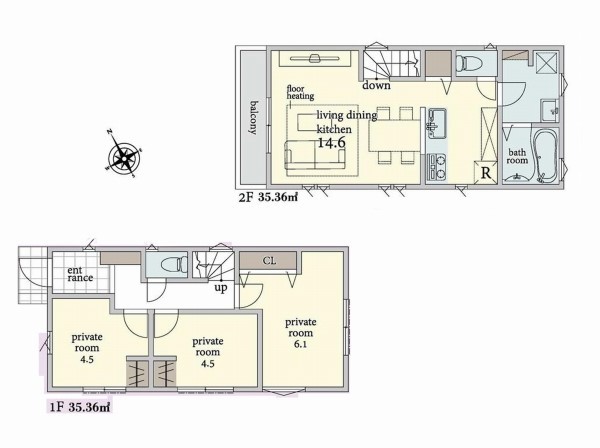
間取り
4LDK
所在地
三鷹市 牟礼6丁目
交通
  • 京王井の頭線「三鷹台」駅 バス停「牟礼六丁目」まで 徒歩 3 分 バス利用 10分
  • 中央線「吉祥寺」駅 バス停「牟礼団地・三鷹イースト前」まで 徒歩 7 分 バス利用 10分
土地面積
72.74㎡
建物面積
110.12㎡
  • 前回情報更新日 2025.11.06
  • 次回情報更新予定日 2025.11.20
資料請求 現地見学 電話でお問い合わせ
0120-613-180
外観:現地外観写真
外観:現地外観写真
間取図
間取図
外観:現地外観写真
外観:現地外観写真
外観:現地外観写真
外観:現地外観写真
外観:前面道路含む現地外観写真
外観:前面道路含む現地外観写真
周辺環境:三鷹市立高山小学校
周辺環境:三鷹市立高山小学校
周辺環境:三鷹市立第三中学校
周辺環境:三鷹市立第三中学校
周辺環境:牟礼保育園
周辺環境:牟礼保育園
周辺環境:三鷹病院
周辺環境:三鷹病院
周辺環境:三鷹台駅
周辺環境:三鷹台駅

この物件のココがオススメ!

角地につき開放的な立地です。LDKは22帖のワンフロア仕様。4LDKでプライベートも充実の間取りです

こだわりポイント

  • 省エネに配慮された建物
  • 浴室換気乾燥暖房機
  • 急行電車でスピード通勤
  • 始発で座ってゆったり通勤
  • 子供の多い街に住む
  • ウォークインクローゼット
  • リビングイン階段
  • LDKは2階に
  • LDK20帖以上
  • 主寝室 8帖以上
  • 対面キッチン
  • 浴室1坪以上
  • 小学校10分以内
  • スーパー10分以内
  • コンビニ10分以内
  • 総合病院10分以内
  • 小児科医院10分以内
  • 保育園10分以内
  • 幼稚園10分以内
  • 公園10分以内
  • 都市ガス
  • フラット35利用可
  • 隣家との間隔たっぷり
  • 角地限定
  • 道路と段差無し

お気軽にどうぞ!

資料請求 現地見学 電話でお問い合わせ
0120-613-180

地図

申し訳ありません
こちらは会員限定機能です

会員登録で利用できる6つの便利機能

詳しく見る

間取り

お気軽にどうぞ!

資料請求 現地見学 電話でお問い合わせ
0120-613-180

ローンシミュレーション

頭金0万円・金利0.495%の場合

ボーナス時(年2回)お支払額

0

この物件の月々のお支払額

187,105

年収に対する返済比率

75

  • ※会員登録し、詳細情報を記入されますと、全ての物件で自動的に金額が表示され、大変便利です。
  • ※まだ会員登録をされていない方は、下記チェック欄をご記入ください。
  • ※上記計算は物件価格6,680万円+諸経費 8%込みの金額による結果となります。
  • ※返済金額はあくまでも目安です。

お客様の条件からシミュレーションするには?

会員登録
マイページから登録

ローンシミュレーションを入力

金利

直接入力する

ボーナス払い(年2回)

返済年数

頭金

直接入力する

 万円(半角数字)

年収

 万円(半角数字)

周辺環境

約600m

小学校

周辺環境:三鷹市立高山小学校

小学校

約600m

約750m

中学校

周辺環境:三鷹市立第三中学校

中学校

約750m

約610m

幼稚園・保育園

周辺環境:牟礼保育園

幼稚園・保育園

約610m

約750m

病院

周辺環境:三鷹病院

病院

約750m

約1,450m

周辺環境:三鷹台駅

約1,450m

物件概要

価格 6,680万円
物件種別 新築一戸建て
間取り 4LDK
所在地 三鷹市 牟礼6丁目
交通
  • 京王井の頭線「三鷹台」駅 バス停「牟礼六丁目」まで 徒歩 3 分 バス利用 10分
  • 中央線「吉祥寺」駅 バス停「牟礼団地・三鷹イースト前」まで 徒歩 7 分 バス利用 10分
土地面積 72.74㎡
建物面積 110.12㎡
学区 三鷹市立高山小学校、三鷹市立第三中学校
用途地域 第一種住居
建ぺい率 60%
容積率 160%
地目 宅地
駐車場 有り カースペース
接道 北西4m、北東4m
権利 所有権
私道面積 無し
セットバック 無し
建物構造 木造
建物階数 3階
築年月 2025年10月
入居日 即時
都市計画 市街化区域
取引態様 仲介
物件番号 T280690
設備 公営水道、公共下水、外壁サイディング、角地、地盤調査済、2沿線以上利用可、システムキッチン、カウンタキッチン、追い焚き、浴室乾燥機、トイレ2ヶ所、浴室1坪以上、浴室に窓、バルコニー、2階建、LDK20畳以上、採光3面、全室2面採光、リビング階段、全居室収納、フラット35Sに対応、モニタ付きインターフォン、複層ガラス、通風良好、陽当り良好
建築確認番号 KS125-3120-50254号
特記事項 隅切り:有/景観法:有/高度地区:有/準防火地域:有/日影制限:有/敷地面積最低限度:有/私道持分42.26平米有。 /
備考 角地につき開放的な立地です。LDKは22帖のワンフロア仕様。4LDKでプライベートも充実の間取りです

お気軽にどうぞ!

資料請求 現地見学 電話でお問い合わせ
0120-613-180

このエリアでお探しの方へ

府中市美好町2丁目 新築一戸建て 6380万円 3号棟

京王線「分倍河原」駅 徒歩 14 分

武蔵野線「北府中」駅 徒歩 16 分

府中市 美好町2丁目

6,380万円

4LDK

府中市若松町3丁目 新築一戸建て 6380万円 1号棟

京王線「多磨霊園」駅 徒歩 13 分

京王線「東府中」駅 徒歩 14 分

府中市 若松町3丁目

6,380万円

4LDK

国立市西1丁目 新築一戸建て 6380万円 D号棟

南武線「西国立」駅 徒歩 14 分

中央線「国立」駅 徒歩 18 分

国立市 西1丁目

6,380万円

2SLDK

三鷹市大沢1丁目 新築一戸建て 6390万円 1号棟

京王線「調布」駅 バス停「深大寺北町」まで 徒歩 9 分 バス利用 12分

中央線「三鷹」駅 バス停「深大寺北町」まで 徒歩 9 分 バス利用 27分

三鷹市 大沢1丁目

6,390万円

4LDK

西東京市南町3丁目 新築一戸建て 6480万円 1号棟

西武新宿線「田無」駅 徒歩 10 分

中央線「武蔵境」駅 バス停「南町三丁目」まで 徒歩 3 分 バス利用 13分

西東京市 南町3丁目

6,480万円

4LDK

府中市白糸台3丁目 新築一戸建て 6480万円 1号棟

京王線「武蔵野台」駅 徒歩 5 分

西武多摩川線「白糸台」駅 徒歩 9 分

府中市 白糸台3丁目

6,480万円

3LDK

国分寺市東戸倉1丁目 新築一戸建て 6490万円 2号棟

西武国分寺線「恋ヶ窪」駅 徒歩 8 分

中央線「西国分寺」駅 徒歩 22 分

国分寺市 東戸倉1丁目

6,490万円

4LDK

調布市富士見町3丁目 新築一戸建て 6490万円 A号棟

京王線「西調布」駅 徒歩 14 分

京王線「調布」駅 徒歩 21 分

調布市 富士見町3丁目

6,490万円

3LDK

国分寺市日吉町3丁目 新築一戸建て 6490万円 1号棟

西武国分寺線「恋ヶ窪」駅 徒歩 17 分

中央線「西国分寺」駅 徒歩 19 分

国分寺市 日吉町3丁目

6,490万円

3LDK

国立市中3丁目 一戸建て 6580万円 1号棟

南武線「谷保」駅 徒歩 15 分

中央線「国立」駅 徒歩 18 分

国立市 中3丁目

6,580万円

3LDK

三鷹市中原4丁目 新築一戸建て 6590万円 1号棟

京王線「つつじヶ丘」駅 徒歩 19 分

京王線「調布」駅 バス停「晃華学園東」まで 徒歩 10 分 バス利用 22分

三鷹市 中原4丁目

6,590万円

3LDK

西東京市南町3丁目 新築一戸建て 6590万円 1号棟

西武新宿線「田無」駅 徒歩 10 分

西武新宿線「西武柳沢」駅 徒歩 14 分

西東京市 南町3丁目

6,590万円

3LDK

お気軽にどうぞ!

資料請求 現地見学 電話でお問い合わせ
0120-613-180
来店予約