ようこそ!ゲストさん
お気に入り
保存した検索条件
閲覧履歴
会員登録
ログイン
0120-613-180
営業時間:9:00~21:00
選択中の条件:武蔵野市
エリア
武蔵野市
詳細条件
-
こだわり
該当件数
5件
武蔵野市関前4丁目 建築条件無売地 5380万円 A区画
値下げしました
土地・売り地
5,380万円
2025.11.20更新
武蔵野市関前5丁目 建築条件付売地 6680万円 2区画
6,680万円
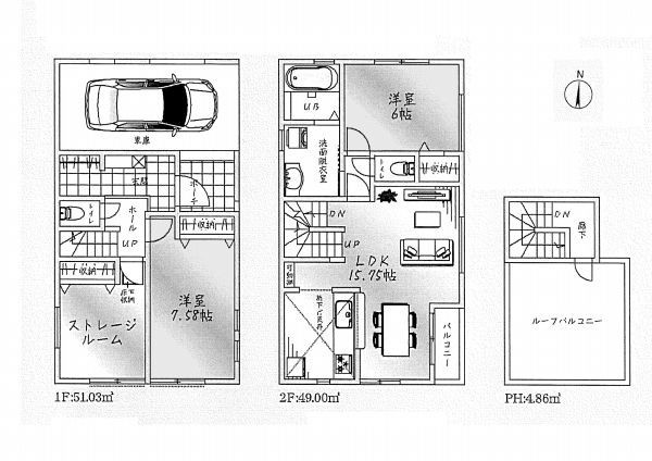
武蔵野市吉祥寺北町2丁目 新築一戸建て 7290万円 1号棟
間取り
建物完成しましたのでご見学頂けます!
新築一戸建て
7,290万円
2SLDK
2025.11.21更新
武蔵野市桜堤1丁目 新築一戸建て 7690万円 1号棟
7,690万円
武蔵野市関前5丁目 新築一戸建て 8580万円 1号棟
8,580万円
4LDK