1. トップページ
  2. 調布市深大寺北町2丁目 新築一戸建て 5990万円 1号棟

調布市深大寺北町2丁目 新築一戸建て 5990万円 1号棟

価格
5,990万円
物件種別
新築一戸建て
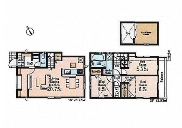
間取り
4LDK
所在地
調布市 深大寺北町2丁目
交通
  • 京王線「調布」駅 バス停「北ノ台小学校」まで 徒歩 4 分 バス利用 22分
  • 中央線「三鷹」駅 バス停「北ノ台小学校」まで 徒歩 4 分 バス利用 24分
土地面積
141.43㎡
建物面積
84.24㎡
  • 前回情報更新日 2026.03.24
  • 次回情報更新予定日 2026.04.07
資料請求 現地見学 電話でお問い合わせ
0120-613-180
間取図
間取図
周辺環境:調布市立北ノ台小学校
周辺環境:調布市立北ノ台小学校
周辺環境:調布市立神代中学校
周辺環境:調布市立神代中学校
周辺環境:神代保育園
周辺環境:神代保育園
周辺環境:杏林大学医学部付属病院
周辺環境:杏林大学医学部付属病院

この物件のココがオススメ!

敷地南側に駐車3台分のスペースを確保しています。家族のプライベートも充実の4LDK間取りです。

こだわりポイント

  • 耐震に配慮された建物
  • 断熱に配慮された建物
  • 省エネに配慮された建物
  • 浴室換気乾燥暖房機
  • 急行電車でスピード通勤
  • 始発で座ってゆったり通勤
  • 2沿線利用であんしん通勤
  • 子供の多い街に住む
  • 自然を感じる暮らし
  • 広い庭のある暮らし
  • LDKは1階に
  • 2階建て住宅限定
  • LDK15帖以上
  • 吹き抜け有り
  • 広々バルコニー
  • 対面キッチン
  • 浴室1坪以上
  • ロフト・小屋裏収納
  • パントリー
  • 小学校10分以内
  • 大規模公園10分以内
  • スーパー10分以内
  • コンビニ10分以内
  • 保育園10分以内
  • 公園10分以内
  • 都市ガス
  • フラット35利用可
  • カースペース3台以上
  • 隣家との間隔たっぷり
  • 角地限定
  • 日当たり良好
  • 道路と段差無し
  • 低層住居専用地域

お気軽にどうぞ!

資料請求 現地見学 電話でお問い合わせ
0120-613-180

地図

申し訳ありません
こちらは会員限定機能です

会員登録で利用できる6つの便利機能

詳しく見る

間取り

お気軽にどうぞ!

資料請求 現地見学 電話でお問い合わせ
0120-613-180

ローンシミュレーション

頭金0万円・金利0.495%の場合

ボーナス時(年2回)お支払額

0

この物件の月々のお支払額

167,782

年収に対する返済比率

67

  • ※会員登録し、詳細情報を記入されますと、全ての物件で自動的に金額が表示され、大変便利です。
  • ※まだ会員登録をされていない方は、下記チェック欄をご記入ください。
  • ※上記計算は物件価格5,990万円+諸経費 8%込みの金額による結果となります。
  • ※返済金額はあくまでも目安です。

お客様の条件からシミュレーションするには?

会員登録
マイページから登録

ローンシミュレーションを入力

金利

直接入力する

ボーナス払い(年2回)

返済年数

頭金

直接入力する

 万円(半角数字)

年収

 万円(半角数字)

周辺環境

約290m

小学校

周辺環境:調布市立北ノ台小学校

小学校

約290m

約2,200m

中学校

周辺環境:調布市立神代中学校

中学校

約2,200m

約2,500m

幼稚園・保育園

周辺環境:神代保育園

幼稚園・保育園

約2,500m

約1,900m

病院

周辺環境:杏林大学医学部付属病院

病院

約1,900m

物件概要

価格 5,990万円
物件種別 新築一戸建て
間取り 4LDK
所在地 調布市 深大寺北町2丁目
交通
  • 京王線「調布」駅 バス停「北ノ台小学校」まで 徒歩 4 分 バス利用 22分
  • 中央線「三鷹」駅 バス停「北ノ台小学校」まで 徒歩 4 分 バス利用 24分
土地面積 141.43㎡
建物面積 84.24㎡
学区 調布市立北ノ台小学校、調布市立神代中学校
用途地域 第一種低層住居専用
建ぺい率 30%
容積率 60%
地目 宅地
駐車場 有り カースペース
接道 北東4m、北西5m
権利 所有権
私道面積 有 4.38㎡
セットバック 無し
建物構造 木造
建物階数 2階
築年月 2026年05月
入居日 2026年06月
都市計画 市街化区域
取引態様 仲介
物件番号 T293549
設備 公営水道、公共下水、吹き抜け、設計住宅性能評価付、閑静な住宅地、角地、地盤調査済、2沿線以上利用可、システムキッチン、カウンタキッチン、浄水器、追い焚き、浴室乾燥機、ウォシュレット、トイレ2ヶ所、浴室1坪以上、浴室に窓、ワイドバルコニー、南面バルコニー、2階建、ロフト、LDK15畳以上、採光2面、床下収納、全居室収納、フラット35Sに対応、モニタ付きインターフォン、複層ガラス、通風良好、陽当り良好
建築確認番号 第25UDI1W建12124号
特記事項 隅切り:有/景観法:有/高度地区:有/日影制限:有/高さ限度:有/調布都市計画公園神代公園内に位置します。高圧線下に該当。引渡し時に線下補償料は清算致しません。 /
備考 敷地南側に駐車3台分のスペースを確保しています。家族のプライベートも充実の4LDK間取りです。

お気軽にどうぞ!

資料請求 現地見学 電話でお問い合わせ
0120-613-180

このエリアでお探しの方へ

小平市回田町 新築一戸建て 5730万円 1号棟

西武多摩湖線「一橋学園」駅 徒歩 19 分

中央線「国分寺」駅 バス停「鈴木一丁目」まで 徒歩 4 分 バス利用 17分

小平市 回田町

5,730万円

4LDK

調布市深大寺北町2丁目 新築一戸建て 5790万円 5号棟

京王線「調布」駅 バス停「北ノ台小学校」まで 徒歩 4 分 バス利用 22分

中央線「三鷹」駅 バス停「北ノ台小学校」まで 徒歩 4 分 バス利用 24分

調布市 深大寺北町2丁目

5,790万円

3LDK

調布市深大寺北町2丁目 新築一戸建て 5790万円 3号棟

京王線「調布」駅 バス停「北ノ台小学校」まで 徒歩 4 分 バス利用 22分

中央線「三鷹」駅 バス停「北ノ台小学校」まで 徒歩 4 分 バス利用 24分

調布市 深大寺北町2丁目

5,790万円

4LDK

小平市津田町1丁目 新築一戸建て 5790万円 A号棟

西武国分寺線「鷹の台」駅 徒歩 5 分

武蔵野線「新小平」駅 徒歩 14 分

小平市 津田町1丁目

5,790万円

4LDK

小平市大沼町6丁目 新築一戸建て 5790万円 1号棟

西武新宿線「花小金井」駅 徒歩 21 分

西武新宿線「小平」駅 徒歩 21 分

小平市 大沼町6丁目

5,790万円

4LDK

小平市津田町1丁目 新築一戸建て 5790万円 B号棟

西武国分寺線「鷹の台」駅 徒歩 5 分

武蔵野線「新小平」駅 徒歩 14 分

小平市 津田町1丁目

5,790万円

4LDK

三鷹市大沢5丁目 新築一戸建て 5799万円 2号棟

京王線「西調布」駅 徒歩 23 分

京王線「調布」駅 バス停「大沢コミュニティセンター」まで 徒歩 5 分 バス利用 6分

三鷹市 大沢5丁目

5,799万円

3LDK

国立市富士見台1丁目 新築一戸建て 5880万円 2号棟

南武線「谷保」駅 徒歩 9 分

中央線「国立」駅 徒歩 22 分

国立市 富士見台1丁目

5,880万円

2SLDK

府中市清水が丘3丁目 新築一戸建て 5890万円 6号棟

京王線「多磨霊園」駅 徒歩 4 分

京王線「東府中」駅 徒歩 10 分

府中市 清水が丘3丁目

5,890万円

3LDK

府中市清水が丘3丁目 新築一戸建て 5890万円 4号棟

京王線「多磨霊園」駅 徒歩 4 分

京王線「東府中」駅 徒歩 10 分

府中市 清水が丘3丁目

5,890万円

3LDK

小平市津田町1丁目 新築一戸建て 5890万円 C号棟

西武国分寺線「鷹の台」駅 徒歩 5 分

武蔵野線「新小平」駅 徒歩 14 分

小平市 津田町1丁目

5,890万円

4LDK

立川市栄町3丁目 新築一戸建て 5930万円 2号棟

中央線「立川」駅 バス停「栄町三丁目」まで 徒歩 4 分 バス利用 14分

多摩都市モノレール「立飛」駅 徒歩 13 分

立川市 栄町3丁目

5,930万円

3LDK

お気軽にどうぞ!

資料請求 現地見学 電話でお問い合わせ
0120-613-180
来店予約