1. トップページ
  2. 三鷹市上連雀9丁目 新築一戸建て 7980万円 1号棟

三鷹市上連雀9丁目 新築一戸建て 7980万円 1号棟

価格
7,980万円
物件種別
新築一戸建て
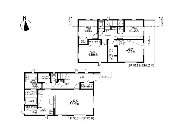
間取り
3SLDK
所在地
三鷹市 上連雀9丁目
交通
  • 中央線「三鷹」駅 バス停「山中」まで 徒歩 6 分 バス利用 12分
  • 中央線「武蔵境」駅 バス停「配水場前」まで 徒歩 6 分 バス利用 10分
土地面積
121.10㎡
建物面積
95.84㎡
  • 前回情報更新日 2025.12.04
  • 次回情報更新予定日 2025.12.18
資料請求 現地見学 電話でお問い合わせ
0120-613-180
外観:現地外観写真(建築中)
外観:現地外観写真(建築中)
間取図
間取図
外観:現地外観写真(建築中)
外観:現地外観写真(建築中)
外観:前面道路含む現地外観写真(建築中)
外観:前面道路含む現地外観写真(建築中)
外観:前面道路含む現地外観写真(建築中)
外観:前面道路含む現地外観写真(建築中)
周辺環境:三鷹市立南浦小学校
周辺環境:三鷹市立南浦小学校
周辺環境:三鷹市立第一中学校
周辺環境:三鷹市立第一中学校
周辺環境:山中保育園
周辺環境:山中保育園
周辺環境:三鷹中央病院
周辺環境:三鷹中央病院
周辺環境:三鷹駅
周辺環境:三鷹駅

この物件のココがオススメ!

家族が集うLDKは開放的な19.68帖の広さです。対面キッチンスタイルで家族の様子を見守れます。

こだわりポイント

  • 省エネに配慮された建物
  • 浴室換気乾燥暖房機
  • 運転ラクラク生活
  • 急行電車でスピード通勤
  • 始発で座ってゆったり通勤
  • 2沿線利用であんしん通勤
  • LDKは1階に
  • 2階建て住宅限定
  • LDK18帖以上
  • 広々バルコニー
  • 対面キッチン
  • 浴室1坪以上
  • スーパー10分以内
  • コンビニ10分以内
  • 小児科医院10分以内
  • 保育園10分以内
  • 幼稚園10分以内
  • 公園10分以内
  • 都市ガス
  • フラット35利用可
  • カースペース2台
  • 隣家との間隔たっぷり
  • 道路広々(5m以上)
  • 日当たり良好
  • 南道路限定
  • 低層住居専用地域

お気軽にどうぞ!

資料請求 現地見学 電話でお問い合わせ
0120-613-180

地図

申し訳ありません
こちらは会員限定機能です

会員登録で利用できる6つの便利機能

詳しく見る

間取り

お気軽にどうぞ!

資料請求 現地見学 電話でお問い合わせ
0120-613-180

ローンシミュレーション

頭金0万円・金利0.495%の場合

ボーナス時(年2回)お支払額

0

この物件の月々のお支払額

223,520

年収に対する返済比率

89

  • ※会員登録し、詳細情報を記入されますと、全ての物件で自動的に金額が表示され、大変便利です。
  • ※まだ会員登録をされていない方は、下記チェック欄をご記入ください。
  • ※上記計算は物件価格7,980万円+諸経費 8%込みの金額による結果となります。
  • ※返済金額はあくまでも目安です。

お客様の条件からシミュレーションするには?

会員登録
マイページから登録

ローンシミュレーションを入力

金利

直接入力する

ボーナス払い(年2回)

返済年数

頭金

直接入力する

 万円(半角数字)

年収

 万円(半角数字)

周辺環境

約950m

小学校

周辺環境:三鷹市立南浦小学校

小学校

約950m

約800m

中学校

周辺環境:三鷹市立第一中学校

中学校

約800m

約560m

幼稚園・保育園

周辺環境:山中保育園

幼稚園・保育園

約560m

約1,210m

病院

周辺環境:三鷹中央病院

病院

約1,210m

約2,640m

周辺環境:三鷹駅

約2,640m

物件概要

価格 7,980万円
物件種別 新築一戸建て
間取り 3SLDK
所在地 三鷹市 上連雀9丁目
交通
  • 中央線「三鷹」駅 バス停「山中」まで 徒歩 6 分 バス利用 12分
  • 中央線「武蔵境」駅 バス停「配水場前」まで 徒歩 6 分 バス利用 10分
土地面積 121.10㎡
建物面積 95.84㎡
学区 三鷹市立南浦小学校、三鷹市立第一中学校
用途地域 第一種低層住居専用
建ぺい率 40%
容積率 80%
地目 宅地
駐車場 有り カースペース
接道 西5m、南5.5m
権利 所有権
私道面積 無し
セットバック 無し
建物構造 木造
建物階数 2階
築年月 2025年12月
入居日 2026年01月
都市計画 市街化区域
取引態様 仲介
物件番号 T287471
設備 公営水道、公共下水、外壁サイディング、閑静な住宅地、角地、地盤調査済、南側道路面す、2沿線以上利用可、システムキッチン、カウンタキッチン、追い焚き、浴室乾燥機、ウォシュレット、トイレ2ヶ所、浴室1坪以上、浴室に窓、バルコニー、2階建、LDK18畳以上、採光3面、全室2面採光、床下収納、全居室収納、フラット35Sに対応、モニタ付きインターフォン、複層ガラス、通風良好、陽当り良好
建築確認番号 第25UDI1T建00505号
特記事項 法22条区域/不整形地:有/隅切り:有/景観法:有/高度地区:有/日影制限:有/敷地面積最低限度:有/高さ限度:有。 /
備考 家族が集うLDKは開放的な19.68帖の広さです。対面キッチンスタイルで家族の様子を見守れます。

お気軽にどうぞ!

資料請求 現地見学 電話でお問い合わせ
0120-613-180

このエリアでお探しの方へ

調布市西つつじケ丘1丁目 新築一戸建て 7690万円 2号棟

京王線「つつじヶ丘」駅 徒歩 12 分

京王線「柴崎」駅 徒歩 9 分

調布市 西つつじケ丘1丁目

7,690万円

3SLDK

西東京市富士町2丁目 新築一戸建て 7699万円 1号棟

西武新宿線「東伏見」駅 徒歩 9 分

西武新宿線「武蔵関」駅 徒歩 20 分

西東京市 富士町2丁目

7,699万円

3LDK

国分寺市高木町3丁目 一戸建て 7820万円

中央線「国立」駅 徒歩 26 分

中央線「立川」駅 バス停「西町四丁目」まで 徒歩 3 分 バス利用 19分

国分寺市 高木町3丁目

7,820万円

3SLDK

西東京市南町5丁目 新築一戸建て 7980万円 A号棟

西武新宿線「田無」駅 徒歩 4 分

西武池袋線「ひばりヶ丘」駅 バス停「田無駅」まで 徒歩 4 分 バス利用 14分

西東京市 南町5丁目

7,980万円

3SLDK

小金井市前原町3丁目 新築一戸建て 7980万円 2号棟

中央線「武蔵小金井」駅 徒歩 12 分

中央線「国分寺」駅 バス停「小金井車庫」まで 徒歩 7 分 バス利用 14分

小金井市 前原町3丁目

7,980万円

3LDK

小金井市東町1丁目 新築一戸建て 7999万円 1号棟

西武多摩川線「新小金井」駅 徒歩 10 分

中央線「東小金井」駅 徒歩 19 分

小金井市 東町1丁目

7,999万円

4LDK

三鷹市上連雀9丁目 新築一戸建て 8150万円

中央線「三鷹」駅 バス停「山中住宅」まで 徒歩 2 分 バス利用 7分

京王線「調布」駅 バス停「山中」まで 徒歩 7 分 バス利用 30分

三鷹市 上連雀9丁目

8,150万円

4LDK

調布市緑ケ丘1丁目 新築一戸建て 8198万円 1号棟

京王線「仙川」駅 徒歩 17 分

京王線「つつじヶ丘」駅 徒歩 24 分

調布市 緑ケ丘1丁目

8,198万円

3LDK

東大和市芋窪1丁目 新築一戸建て 3530万円 1号棟

多摩都市モノレール「上北台」駅 徒歩 15 分

西武拝島線「東大和市」駅 バス停「芋窪」まで 徒歩 3 分 バス利用 12分

東大和市 芋窪1丁目

3,530万円

3LDK

東大和市芋窪1丁目 新築一戸建て 3580万円 3号棟

多摩都市モノレール「上北台」駅 徒歩 15 分

西武拝島線「東大和市」駅 バス停「芋窪」まで 徒歩 3 分 バス利用 12分

東大和市 芋窪1丁目

3,580万円

3LDK

立川市一番町1丁目 新築一戸建て 3580万円 1号棟

西武拝島線「武蔵砂川」駅 徒歩 20 分

多摩都市モノレール「泉体育館」駅 バス停「天王橋」まで 徒歩 9 分 バス利用 13分

立川市 一番町1丁目

3,580万円

3LDK

東大和市奈良橋6丁目 一戸建て 3590万円 1号棟

多摩都市モノレール「上北台」駅 徒歩 13 分

西武拝島線「東大和市」駅 徒歩 28 分

東大和市 奈良橋6丁目

3,590万円

4LDK

お気軽にどうぞ!

資料請求 現地見学 電話でお問い合わせ
0120-613-180
来店予約