1. トップページ
  2. 川崎市宮前区野川本町1丁目 建築条件無売地 1200万円

川崎市宮前区野川本町1丁目 建築条件無売地 1200万円

価格
1,200万円
物件種別
土地・売り地
所在地
川崎市宮前区 野川本町1丁目
交通
  • 田園都市線「梶が谷」駅 徒歩 26 分
  • 南武線「武蔵新城」駅 徒歩 26 分
土地面積
65.28㎡
  • 前回情報更新日 2026.03.12
  • 次回情報更新予定日 2026.03.26
資料請求 現地見学 電話でお問い合わせ
0120-613-180
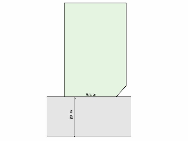
区画図
区画図
リビング建築プラン例:建築条件はありません。ご家族の希望のマイホームを実現しませんか?
リビング建築プラン例:建築条件はありません。ご家族の希望のマイホームを実現しませんか?
リビング建築プラン例:建築条件はありません。ご家族の希望のマイホームを実現しませんか?
リビング建築プラン例:建築条件はありません。ご家族の希望のマイホームを実現しませんか?
キッチン建築プラン例:建築条件はありません。ご家族の希望のマイホームを実現しませんか?
キッチン建築プラン例:建築条件はありません。ご家族の希望のマイホームを実現しませんか?
外観:落ち着きある住宅街、一種低層住居専用地域内に位置しています。建築条件はありません。ご家族の希望のマイホームを実現できます
外観:落ち着きある住宅街、一種低層住居専用地域内に位置しています。建築条件はありません。ご家族の希望のマイホームを実現できます
外観:緑の多く残る住宅地「宮前区野川本町」 南側道路に面した売地です。建築条件はありません。ご家族の希望のマイホームを実現しませんか?
外観:緑の多く残る住宅地「宮前区野川本町」 南側道路に面した売地です。建築条件はありません。ご家族の希望のマイホームを実現しませんか?
リビング建築プラン例:建築条件はありません。ご家族の希望のマイホームを実現しませんか?
リビング建築プラン例:建築条件はありません。ご家族の希望のマイホームを実現しませんか?
浴室建築プラン例:建築条件はありません。ご家族の希望のマイホームを実現しませんか?
浴室建築プラン例:建築条件はありません。ご家族の希望のマイホームを実現しませんか?
浴室建築プラン例:建築条件はありません。ご家族の希望のマイホームを実現しませんか?
浴室建築プラン例:建築条件はありません。ご家族の希望のマイホームを実現しませんか?
周辺環境:梶が谷駅(自然を残すキレイな住宅街の中にあります。渋谷駅までは乗り換えなしで27分の利便性があります。)
周辺環境:梶が谷駅(自然を残すキレイな住宅街の中にあります。渋谷駅までは乗り換えなしで27分の利便性があります。)
周辺環境:高津区市民健康の森 春日台公園(野球場が併設されている広々とした公園。都市圏にありながら森林浴が楽しめるほど、自然豊かな場所です。)
周辺環境:高津区市民健康の森 春日台公園(野球場が併設されている広々とした公園。都市圏にありながら森林浴が楽しめるほど、自然豊かな場所です。)
周辺環境:ロイヤルホームセンター梶ヶ谷店(工具・金物・資材をはじめ、リフォーム・インテリア・ガーデニング・ペット向けの商品など幅広く提供。)
周辺環境:ロイヤルホームセンター梶ヶ谷店(工具・金物・資材をはじめ、リフォーム・インテリア・ガーデニング・ペット向けの商品など幅広く提供。)
周辺環境:FUJI上野川店(自転車や車で立ち寄りやすい駐車場完備のスーパーです。休日の買い出しや、お出かけ前やお帰りの立ち寄りにも便利です。)
周辺環境:FUJI上野川店(自転車や車で立ち寄りやすい駐車場完備のスーパーです。休日の買い出しや、お出かけ前やお帰りの立ち寄りにも便利です。)
周辺環境:クリエイトS・D川崎千年店(豊富な品揃えときめ細やかなサービスのドラッグストア。日用品から処方調剤まで様々なサービスを展開しています。)
周辺環境:クリエイトS・D川崎千年店(豊富な品揃えときめ細やかなサービスのドラッグストア。日用品から処方調剤まで様々なサービスを展開しています。)
周辺環境:野川小学校(明治6年創立で約155年の歴史がある学校。総生徒数約780人で各学年120~130人。)
周辺環境:野川小学校(明治6年創立で約155年の歴史がある学校。総生徒数約780人で各学年120~130人。)
周辺環境:野川中学校(自己の将来を思慮しながら、自主的、創造的に活動する生徒の育成を目指します。)
周辺環境:野川中学校(自己の将来を思慮しながら、自主的、創造的に活動する生徒の育成を目指します。)
周辺環境:溝口温泉 喜楽里(天然温泉施設です。「美人の湯」「美肌の湯」と呼ばれる温泉はじめ多彩なお風呂をご用意しております。)
周辺環境:溝口温泉 喜楽里(天然温泉施設です。「美人の湯」「美肌の湯」と呼ばれる温泉はじめ多彩なお風呂をご用意しております。)
周辺環境:新作やはた幼稚園(子供たちがつくる小さな社会のなかで、ひとりひとりの個性を大切にし、「よりたくましく」「よりかしこく」「より豊かに」を取り組んでいます。)
周辺環境:新作やはた幼稚園(子供たちがつくる小さな社会のなかで、ひとりひとりの個性を大切にし、「よりたくましく」「よりかしこく」「より豊かに」を取り組んでいます。)

この物件のココがオススメ!

南道路に面した敷地です 建築条件はありません。ご家族の希望のマイホームを実現しませんか?

こだわりポイント

  • 自然を感じる暮らし
  • 建築前自由設計
  • 有料道路インター2キロ以内
  • スーパー10分以内
  • コンビニ10分以内
  • 保育園10分以内
  • 公園10分以内
  • 日当たり良好
  • 南道路限定
  • 整形地
  • 低層住居専用地域

お気軽にどうぞ!

資料請求 現地見学 電話でお問い合わせ
0120-613-180

地図

申し訳ありません
こちらは会員限定機能です

会員登録で利用できる6つの便利機能

詳しく見る

間取り

お気軽にどうぞ!

資料請求 現地見学 電話でお問い合わせ
0120-613-180

ローンシミュレーション

頭金0万円・金利0.495%の場合

ボーナス時(年2回)お支払額

0

この物件の月々のお支払額

103,642

年収に対する返済比率

41

  • ※会員登録し、詳細情報を記入されますと、全ての物件で自動的に金額が表示され、大変便利です。
  • ※まだ会員登録をされていない方は、下記チェック欄をご記入ください。
  • ※上記計算は物件価格1,200万円+建物価格2,500万円+諸経費 8%込みの金額による結果となります。
  • ※返済金額はあくまでも目安です。

お客様の条件からシミュレーションするには?

会員登録
マイページから登録

ローンシミュレーションを入力

金利

直接入力する

ボーナス払い(年2回)

返済年数

頭金

直接入力する

 万円(半角数字)

年収

 万円(半角数字)

建物価格

※土地条件を検索した場合の建物予定金額

周辺環境

約1,900m

周辺環境:梶が谷駅(自然を残すキレイな住宅街の中にあります。渋谷駅までは乗り換えなしで27分の利便性があります。)

約1,900m

約550m

公園

周辺環境:高津区市民健康の森 春日台公園(野球場が併設されている広々とした公園。都市圏にありながら森林浴が楽しめるほど、自然豊かな場所です。)

公園

約550m

約850m

ホームセンター

周辺環境:ロイヤルホームセンター梶ヶ谷店(工具・金物・資材をはじめ、リフォーム・インテリア・ガーデニング・ペット向けの商品など幅広く提供。)

ホームセンター

約850m

約1,000m

スーパー

周辺環境:FUJI上野川店(自転車や車で立ち寄りやすい駐車場完備のスーパーです。休日の買い出しや、お出かけ前やお帰りの立ち寄りにも便利です。)

スーパー

約1,000m

約1,200m

ドラッグストア

周辺環境:クリエイトS・D川崎千年店(豊富な品揃えときめ細やかなサービスのドラッグストア。日用品から処方調剤まで様々なサービスを展開しています。)

ドラッグストア

約1,200m

約1,200m

小学校

周辺環境:野川小学校(明治6年創立で約155年の歴史がある学校。総生徒数約780人で各学年120~130人。)

小学校

約1,200m

約1,400m

中学校

周辺環境:野川中学校(自己の将来を思慮しながら、自主的、創造的に活動する生徒の育成を目指します。)

中学校

約1,400m

約1,100m

その他環境写真

周辺環境:溝口温泉 喜楽里(天然温泉施設です。「美人の湯」「美肌の湯」と呼ばれる温泉はじめ多彩なお風呂をご用意しております。)

その他環境写真

約1,100m

約1,100m

その他環境写真

周辺環境:新作やはた幼稚園(子供たちがつくる小さな社会のなかで、ひとりひとりの個性を大切にし、「よりたくましく」「よりかしこく」「より豊かに」を取り組んでいます。)

その他環境写真

約1,100m

物件概要

価格 1,200万円
物件種別 土地・売り地
間取り -
所在地 川崎市宮前区 野川本町1丁目
交通
  • 田園都市線「梶が谷」駅 徒歩 26 分
  • 南武線「武蔵新城」駅 徒歩 26 分
土地面積 65.28㎡
建物面積 -
学区 野川小学校、野川中学校
用途地域 第一種低層住居専用
建ぺい率 50%
容積率 80%
地目 宅地
駐車場 無し
接道 南4m
権利 所有権
私道面積 有 26.00㎡ 1/2
セットバック 無し
建物構造 -
建物階数 -
築年月 -
入居日 相談
都市計画 市街化区域
取引態様 専任
物件番号 A0352
設備 公営水道、公共下水、緑豊かな住宅地、閑静な住宅地、都市近郊、南側道路面す、市街地が近い、周辺交通量少なめ、スーパーが近い(10分以内)、始発駅、2沿線以上利用可、公園5分以内
建築確認番号 -
特記事項 壁面後退:有/景観法:有/宅地造成工事規制区域:有/高度地区:有/日影制限:有/敷地面積最低限度:有/高さ限度:有/建築基準法22条による区域。 建築条件:なし/
備考 南道路に面した敷地です 建築条件はありません。ご家族の希望のマイホームを実現しませんか?

お気軽にどうぞ!

資料請求 現地見学 電話でお問い合わせ
0120-613-180

このエリアでお探しの方へ

お気軽にどうぞ!

資料請求 現地見学 電話でお問い合わせ
0120-613-180
来店予約